一概述
KYN28A-12(GZS1)型鎧裝移開式交流金屬封閉開關設備適用于3.6~12kV三相交流50Hz電網,作為接受和分配電能,并對電路實行控制、監測和保護之用。可用于單母線、單母線分段系統或雙母線系統。用于發電廠送電、電業系統和工礦企業變電所受電、配電,還可以用于頻繁啟動高壓電動機等。
主開關可配ABB 公司的 VD4 型真空斷路器, C3 系列固定式負荷開關,同時也可配置多種國產系列真空斷路器(如 VS1 、VHI 、VK 、 ZN28 )。符合IEC298《額定電壓1kV以上52kV及以下交流金屬封開關設備和控制設備》、IEC694《高壓開關和控制設備共用條款》、GB3906《3-35kV交流金屬封閉開關設備》及DL404《戶內交流高壓開關柜訂貨條件》,德國DIN.VDE670《額定電壓1kV以上的交流開關設備》等標準的要求。并且具有防止誤操作斷路器、防止帶負荷推拉手車、防止帶電關合接地開關、防止接地開關在接地位置時送電和防止誤入帶電間隔等“五防”功能。

二使用環境
海拔高度:不超過1000m;
環境溫度:上限+40℃,下限-10℃;
相對濕度:日平均值不大于95%,月平均值不大于90%;
飽和蒸汽壓:日平均值不大于2.2×10-3MPa,月平均值不大于1.8×10-3 MPa;
地震烈度:不超過8度;
安裝地點:無火災、爆炸危險、嚴重污染、化學腐蝕及劇烈震動的場所。
當使用條件超出上述范圍時,應由用戶與我公司協商確定允許范圍及技術措施。
三型號說明

四性能特點
1、柜體結構采用敷鋁鋅板經多重折彎組裝而成;
2、所有的操作均在柜門關閉狀態下進行,防護等級高,可防止雜物和蟲害侵入;
3、簡單有效的“五防”閉鎖,防止誤操作;
4、可配用VS1(ZN63A)或根據用戶要求選用VD4型真空斷路器;
5、更換斷路器簡單,手車互換性好;
6、柜體可靠墻安裝、柜前維護、減少占地面積;
7、電纜室空間充裕、可連接多根電纜;
8、快速接地開關用于接地和回路短路;
9、斷路器室、繼電器室、電纜室可根據用戶要求分別加裝加熱器,防止凝露與腐蝕發生;
10、斷路器室、電纜室可根據用戶要求分別加裝照明裝置,以方便維護及檢修。
五外形尺寸

高度 B |
2300mm |
|
寬度 A |
分支小母線額定電流 1250A 及以下 |
800mm |
分支小母線額定電流 1600A 以上 |
1000mm |
|
深度 C |
電纜進出線 |
1500mm |
架空進出線 |
1600mm |
|
重量 (kg) |
|
800~1200 |
六技術參數
1、真空開關柜主要技術參數
項目 |
單位 |
數據 |
|||
額定電壓(最高工作電壓) |
kV |
3.6 |
7.2 |
12 |
|
額定絕緣水平 |
1min工頻耐受電壓 |
kV |
24 |
32 |
42 |
雷電沖擊耐受電壓 |
kV |
40 |
60 |
75 |
|
額定頻率 |
Hz |
50 |
|||
主母線額定電流 |
A |
630 1250 1600 2000 2500 3150 4000 5000 |
|||
分支母線額定電流 |
A |
630 1250 1600 2000 2500 3150 4000 5000 |
|||
4s熱穩定電流(有效值) |
kA |
20,25,31.5,40,50 |
|||
額定動穩定電流(峰值) |
kA |
50,63,80,100,125 |
|||
防護等級 |
|
外殼IP4X, 隔離間、斷路器室門打開為IP2X |
|||
2、VD4 、 VS1、VEP真空斷路器技術參數
項目 |
單位 |
數據 |
額定電壓 |
kV |
12 |
額定電流 |
A |
630 1250 1600 2000 2500 3150 4000 5000 |
額定頻率 |
Hz |
50 |
額定熱穩定電流( 4S ) |
KA |
25 31.5 40 50 |
額定動穩定電流(峰值 ) |
kA |
63 80 100 |
額定短路開斷電流 |
kA |
25 31.5 40 50 |
額定短路關合電流(峰值 ) |
kA |
63 80 100 125 |
額定短時工頻耐受電壓 |
kV |
42/1min |
額定雷電沖擊耐受電壓 ( 峰值 ) |
kV |
75 |
額定短路持續時間 |
S |
4 |
額定短路電流開斷次數 |
次 |
50(40kA 為 30) |
合閘時間 ( 額定電壓 ) |
ms |
35 ≤ t ≤ 70 |
分閘時間 ( 額定電壓 ) |
ms |
20 ≤ t ≤ 50 |
額定操作順序 |
|
分 -0.3s- 合分 -180s- 合分 |
機械壽命 |
次 |
20000 |
3、操動機構主要技術參數
項目 |
單位 |
數據 |
|
額定操作電壓 |
分閘線圈 |
V |
DC220/110 AC220/110 |
合閘線圈 |
|||
額定操作電流 |
分閘線圈 |
A |
(DC/AC)220/110V : 0.9/1.8 |
合閘線圈 |
(DC/AC)220/110V : 1.0/2.0 |
||
儲能電動機功率 |
W |
70 |
|
儲能電動機額定電壓 |
V |
DC220/110 AC220/110 |
|
儲能時間 |
S |
≤ 15 |
|
4、VD4 、 VS1、VEP真空斷路器機械特性
項目 |
單位 |
數據 |
觸頭開距 |
mm |
11 ± 1 |
超行程 |
mm |
4 ± 0.5 |
相間中心距離 |
mm |
210 ± 0.5 250 ± 0.5 275 ± 0.5 |
合閘觸頭彈跳時間 |
ms |
≤ 2 |
三相分閘不同期性 |
ms |
≤ 2 |
合閘時間 |
ms |
≤ 100 |
分閘時間 |
ms |
≤ 60 |
平均合閘速度 |
m/s |
0.9-1.2 |
平均分閘速度 |
m/s |
0.6-0.8 |
各相導電回路電阻 |
m Ω |
≤ 40 |
觸頭壓力 |
N |
3200 ± 100 |
當斷路器用于控制作3-10KV 電動機時,若起動電流小于 600A ,必須加金屬氧化鋅避雷器,其具體要求用戶與我公司協商;當斷路器用于開斷電容器組時,電容器組的額定電流不應大于斷路器額定電流的80 % 。
七結構說明
開關設備由固定的柜體和可抽出部分(手車)兩部分組成。柜體外殼和各功能單元的隔板均采用覆鋁鋅鋼板栓接而成。外殼防護等級達到IP4X,各隔室的防護等級為IP2X。

本開關設備一般單列布置非靠墻安裝。由于安裝調試和維護可在柜前正面進行,所以也可以背靠背組成雙重排列或靠墻安裝。
1、外殼與隔板
產品的外殼選用覆鋁鋅鋼板,經CNC機床加工,采取多重復合折邊工藝成形后用螺栓組裝而成,不僅具有很強的抗腐蝕與抗氧化作用,而且具有很高的機械強度和結構尺寸的統一性,有效地保證了產品的整齊和美觀。柜門采用噴塑涂覆,具有較強的抗沖擊和耐腐蝕能力。開關設備被隔板分成手車室、母線室、電纜室和繼電器儀表室,每一單元均獨立接地。
2、手車
手車與柜體的絕緣配合及機構聯鎖安全、可靠、靈活,根據各自的功能作用,可分為隔離手車(GL車)、電壓互感器手車(PT車)、電流互感器手車(CT車)、下層電壓互感器手車(XPT車)、計量手車(JL車)、隔離電壓互感器手車(GL+PT車)、熔斷器手車(RDQ車)、下層避雷器手車(XBLQ車)、接地手車(JD車)及核相手車(HX車),且同類手車完全可以互換。手車在柜內的工作、試驗、移出等位置具有定位裝置,以保證聯鎖可靠。配用專用的蝸輪、蝸桿機構,搖動推進、退出,能實現工作、試驗、移出等位置的互換。
3、斷路器隔離室
斷路器隔室內安裝了特定的軌道供手車移動。斷路器在試驗位置與工作位置之間移動時,隔離活門自動打開或關閉,保證工作人員不觸及帶電體。手車可在柜門關閉的情況下被操作,通過觀察窗可看到手車在柜內所處的位置,同時看到手車上的任何標志。
4、母線隔離室
主母線是單臺拼接相互貫穿聯接,通過分支小母線和靜觸頭盒固定,分支小母線通過螺栓聯接于靜觸頭盒和主母線,不需要其它支撐。主母線在穿越鄰柜側板時用母線套管固定,這樣聯接母線間保留空氣緩沖,在如果出現內部故障電弧時,能防止其貫穿熔化,套管能有效把事故限制在隔離室內而不向其它柜蔓延。
5、電纜隔離室
開關設備采用中置式,因而電纜室空間較大,電流互感器、接地開關裝在隔室的后壁上,
避雷器安裝于隔室內,將手車和可抽出式隔板移開后,施工人員就能從正面進入柜內安裝和維護。充裕的空間可以使每相連接多根電纜。
6、繼電器隔離室
繼電器室內板和面板可安裝控制、保護元件,計量、顯示儀表、帶電監測指示器等二次元件。繼電器室的頂板上還留有便于施工的控制線穿越孔,接線時頂板可翻轉,以便于安裝。
7、聯鎖裝置
1) 開關柜具有可靠的聯鎖裝置,切實保障了操作人員及設備的安全;
2) 接地開關在分閘位置時,手車才能在試驗位置與工作位置之間移動;
3) 只有斷路器手車可靠定位在試驗位置或工作位置時,方可操作;
4) 接地開關關合時,手車不能從試驗位置移至工作位置;
5) 接地開關僅在手車處于試驗位置時才能被操作;
6) 二次插頭與手車位置的聯鎖:手車只有在試驗位置時,二次插頭才能插入或解除;手車處于工作位置時,由于機械聯鎖作用,二次插頭被鎖定,不能解除。
8、接地裝置
在電纜室內,單獨設有4×40 mm2的接地母排,此母排能貫穿相鄰各柜,并與柜體良好接觸。
八襄陽拓邦電氣提醒您:安裝須知




開關設備主母線采用矩形母線,且為分斷形式,在安裝時必須遵照一定的步聚:
1、 一個柜一個柜的進行安裝,將母線段與對應的支路小母線接在一起,栓接時應插入合適
的墊塊,用螺栓擰緊。
2、用清潔干燥的軟布擦拭母線,檢查絕緣管有否損傷,在連接部位涂上導電膏或中性凡士林。
開關柜面對面靠墻安裝示意圖

九使用與維護
(一)開關柜在運行中,操作人員除應遵守有關規程外,還應注意以下問題:
雖然開關設備設計有 開關設備各部分操作程序正確的連鎖,但是操作人員對開關設備各部分的推入和退出,仍應嚴格按操作規程和本技術文件的要求進行,不應隨意操作,更不應在操作受阻時不加分析強行操作,否則,容易造成設備損壞,甚至引起事故。
1、無接地開關的斷路器柜的操作
a.將斷路器可移開部件裝入柜體:斷路器小車準備由柜外推入柜內前,應認真檢查斷路器是否完好,轉運車推到柜前,把小車升到合適位置,將轉運車前部定位鎖板插入柜體中隔板插口并將轉運車與柜體鎖定之后,打開斷路器小車的鎖定鉤,將小車平穩推入柜體內同時鎖定。當確認已將小車與柜體鎖定好之后,解除轉運車與柜體的鎖定,將轉運車推開。
b.小車在柜內操作:小車在從轉運裝入柜體后,即處于柜內斷開位置,若想將小車投入運行,首先使小車處于試驗位置,應將輔助回路插頭插好,若通電則儀表室面板上試驗位置指示燈亮,此時可在主回路未接通的情況下對小車進行電氣操作試驗,若想繼續進行操作,首先必須把所有柜門關好,用鑰匙插入門鎖孔,把門鎖好,并確認斷路器處于分閘狀態(見d 條)。此時可將手車操作搖把插入中面板上操作孔內,順時針轉動搖把,直到搖把明顯受阻并聽到清脆的輔助開關切換聲,同時儀表室面板上工作位置指示燈亮,然后取下搖把。此時,主回路接通,斷路器處于工作位置,可通過控制回路對其進行合、分操作。
若準備將小車從工作位置退出,首先,應確認斷路器已處于分閘狀態(見d 條),插入手車操作搖把,逆時針轉動直到搖把受阻并聽到清脆輔助開關切換聲,小車便回到試驗位置。此時,主回路已經完全斷開,金屬活門開閉。
c.從柜中取出小車,若準備從柜內取出小車,首先應確定小車已處于試驗位置,然后觸除輔助回路插頭并將插頭扣鎖在手車架上,此時將轉運車推到柜前(與把小車裝入柜內時間相同),然后將手車解鎖并向外拉出。當手車完全進入轉運車并確認轉運車鎖定,解除轉運車與柜體的鎖定,把轉運車向后拉出適當距離后,輕輕放下停穩。如小車要用轉運車運輸較長距離時,在推動轉動小車過程中要格外小心。以避免運輸過程中發生生意外事故。
d.斷路器在柜內的分,合閘狀態確認,斷路器的分合閘狀態可由斷路器的手車面板上分、合閘指示牌及儀表室面板上分合閘指示燈兩面判定。若透過柜體中面板觀察玻璃窗看到手車面板上綠色的分閘指示牌,則判定斷路器處于閘狀態,此時土國輔助回路插頭接通電。則儀表室面板上合閘指示燈亮。
2、有接地開關的斷路器柜的操作
將斷路器手車推入柜內和從柜內退出手車程序,與無接地開關的斷路柜的操作程序完全相同。僅當手車在柜內操作過程中和操作接地開關過程中要注意如下:
a.手車柜內操作:當準備將手車推入工作位置時,除了要遵守1、中b 的各項要求外,還應該確認接地開關是否處于分閘狀態,否則下一步操作無法完成。
b.合、分接地開關操作 若要合接地開關,首先應確定手車已退到試驗 / 斷開位置,并取下推進搖把,然后按下接地開關操作孔處連鎖彎板,插入接地開關操作手柄,順時針轉動 90 度,接地開關處于合閘狀態,若再逆時針轉動 90 度,便將接地開關分閘。
3、一般隔離柜的操作
隔離手車不具備按通和斷開負荷電流的能力,因此在帶負荷情況下不準許推拉手車,在進行隔離手車柜內操作時,必須 首先將與之相配合的斷路器分閘(見1、中d ),同時斷路器分閘后其輔助觸點轉換解除與配合的隔離手車上的電氣聯鎖,只有這樣才能操作隔離車,具體操作程序同操作斷路器手車相同。
(二)使用聯鎖的注意事項
1、本產品的聯鎖功能是以機械聯鎖為主,輔之以電氣聯鎖實現其功能的,功能上能實現開關“五防”閉鎖的要求,但是操作人員不應因此而忽視操作規程的要求,只有規程制度與技術手段相結合才能有效發揮聯鎖裝置的保障作用,防止誤操作事故的發生。
2、本產品的聯鎖功能的投入與解除,大部分是在正常操作過程中同時實現的,不要增加額外的操作步驟,如發現操作受阻(如操作阻力增大)應首先檢查是否有誤操作的可能,而不應該強行操作以至損壞設備,甚至導致誤操作事故的發生。
3、有此聯鎖因特殊需要準許緊急解鎖(如柜體下面板和接地開關的聯鎖)。緊急解鎖的使用必須慎重,不宜經常使用,使用時也采取必要的防護措施,一經處理完畢應立即恢復聯鎖原狀。
(三)開關柜的檢修應按有關規程要求進行,建議用戶特別注意以下幾點:
1、按真空斷路器的安裝使用說明書的要求,檢查斷路器的情況,并進行必要的調整。
2、檢查手車推進機構及其聯鎖的情況,應及時處理。
3、檢查主回路觸頭的情況,擦除動靜觸頭上陳舊油脂,察看彈簧力有無明顯變化,有無因溫度過高引起鍍層異常氧化現象,如有以上情況,應及時處理。
4、檢查輔助回路觸頭有無異常情況,并進行必要的休整。
5、檢查接地回路各部分的情況,如接地觸頭,主接地線及過門接地線等, 其導電連續性。
6、檢查各部分緊固件,如有松動,應及時緊固。
十次方案(見附圖)



































十一 訂貨要求
1、主接線方案圖編號、用途和單線系統圖、額定電壓、額定電流,額定短路開斷電流、配電室平面布置圖及開關柜的排列配置圖等;
2、開關柜控制、測量及保護功能的要求以及其它閉鎖和自動裝置的要求以及其他閉鎖和自動裝置的要求及原理圖;
3、開關柜內主要電氣元件的型號,規格及數量;
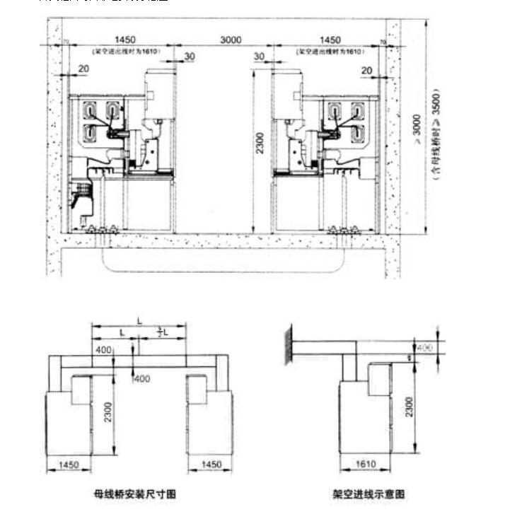
4、如開關柜之間或進線柜需要的母線橋連接,應提供母線橋的額定流量,母線橋的跨度,距地高度等具體要求數據;
5、開關柜使用的在特殊環境條件時,應在訂貨時詳細說明;
6、其它特殊要求
高壓開關柜,就到襄陽拓邦電氣,能給您意想不到收獲!有質量有保證!襄陽拓邦電氣官網電話: 鄭經理:17771133316

當前位置:

熱門推薦

































推薦新聞
在線留言
詳情內容